Verheullaan 2
Oosteindsche Ackers, Bergschenhoek

Omschrijving

Bergschenhoek - Verheullaan 2 (ENGLISH TEXT BELOW)

96 M2 GELIJKVLOERS ENERGIEVRIENDELIJK WOONPLEZIER MET TUIN EN EIGEN BERGING!
Centraal wonen in het groen, aan de rand van Bergschenhoek en nabij Rotterdam.
In een kleinschalig appartementencomplex gelegen sfeervolle en energiezuinige 3-kamer parterrewoning met 2 slaapkamers en een ruime berging aan de achtertuin.
Deze woning verkeert in nette staat van onderhoud, heeft een handige indeling en is per direct beschikbaar.

Ligging:
Het appartement is gelegen aan de rand van Bergschenhoek, nabij uitvalswegen naar Rotterdam, Delft, Den Haag en Zoetermeer.
Binnen een paar minuten fietsen bereikt u het centrum voor de dagelijkse boodschappen. Op loopafstand zijn diverse voorzieningen, waaronder openbaar vervoer.
Verder zijn in de nabije diverse mogelijkheden voor sport en recreatie zoals het groen van het Annie M.G. Schmidtpark en recreatiegebied de Rotte.
Golfbaan de Hooge Rotterdamsche ligt op een paar autominuten. Parkeren kan voor de deur in de straat.

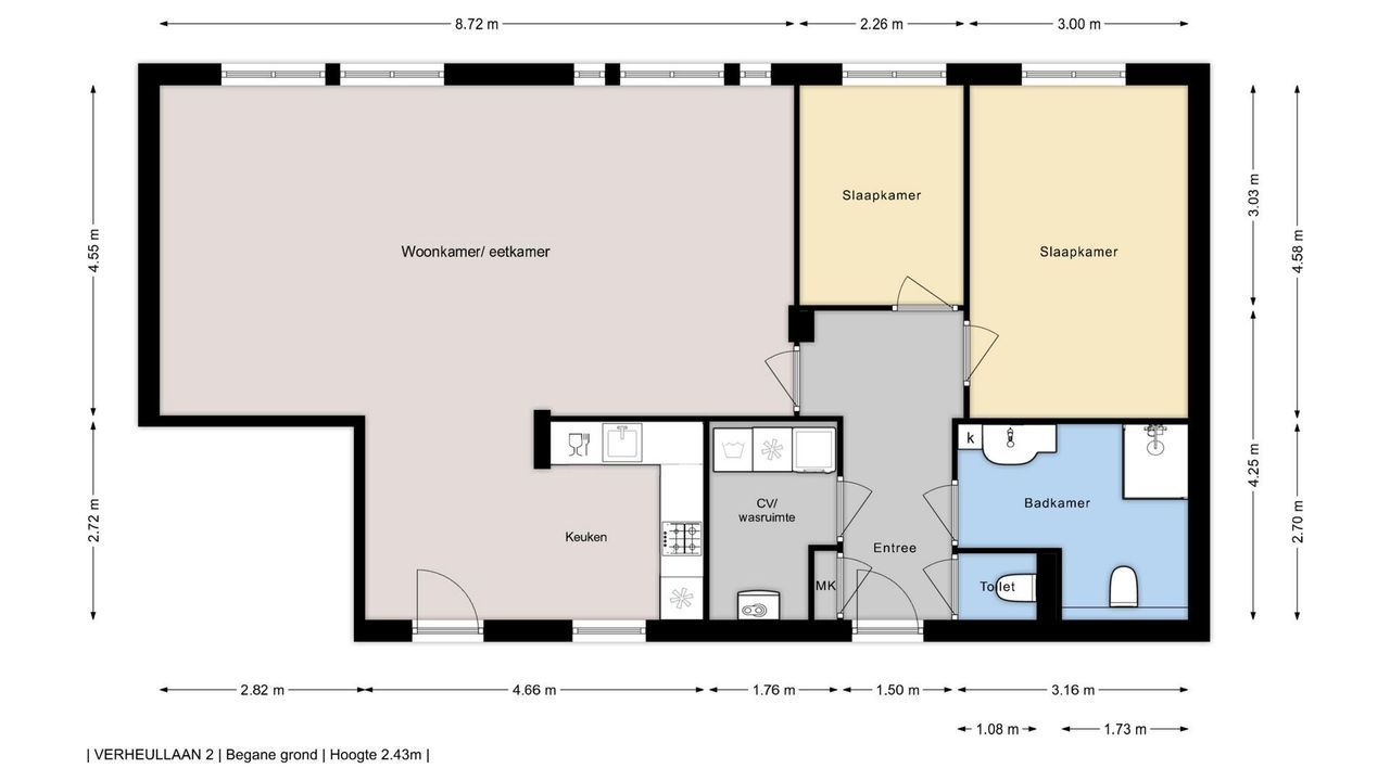
Indeling:
Centrale hal met brievenbussen en bellentableau. Entree van de woning; brede hal met meterkast (6gr, 2x ALS) en een PVC vloer.
Aan de linkerzijde een diepe ruime inpandige berging/technische ruimte met betegelde vloer, opstelplaats CV-ketel, mechanische ventilatie-unit en wasruimte met aansluitingen voor wasmachine en droger.
Aan de rechterzijde van de hal de betegelde WC-ruimte. Een deur verder de ruime betegelde badkamer met inloopdouche, wastafelmeubel en 2e WC.
Vanuit de entreehal toegang tot de lichte en ruime woon/eetkamer met half open keuken aan de tuinzijde.
De woonkamer is door de raampartijen over de volle breedte aan de voorzijde prettig licht, ook door de ramen en deur van de keuken aan de achterzijde komt veel licht binnen.
De keuken heeft lichtgrijze kasten met composiet aanrechtblad en is voorzien van een 4 pits inductie kookplaat, afzuigkap, inbouw koel/vriescombinatie en vaatwasser.
De keuken is voorzien van een tegelvloer, wel zo handig aan de tuinzijde met in en uit lopen. De rest van appartement is voorzien van een strak gelegde PVC vloer.
De achtertuin is betegeld en voorzien van borders en beplanting.
Er kan beschut gezeten worden onder het afdak van de bovengelegen balkons en vol in de zon want de ligging is op de middagzon.
Er is een flinke eigen stenen berging met betonnen vloer aan het eind van de tuin.
De schuur is voorzien van elektra en is handig voor het stallen van een fiets en tuinspullen.

Slaapkamer 1: aan de voorzijde gelegen ruime slaapkamer met draai/kiep raam, veel ruimte voor kasten
Slaapkamer 2: aan de voorzijde gelegen iets kleinere slaapkamer met draai/kiepraam, fijn als 2e slaapkamer of werk-/hobbyruimte

Bent u op zoek naar een goed onderhouden gelijkvloers appartement in een rustige omgeving met een tuin en voldoende bergruimte in een vrij nieuw complex met een gezonde VvE, neem dan contact op voor een bezichtiging.

Bijzonderheden:
- Eigen grond.
- Bouwjaar 1998.
- Energielabel A (geldig tot 16-7-2035)
- Hardhouten kozijnen met isolatiebeglazing.
- Elektra: 6 groepen en 2 aardlekschakelaars
- Verwarming en warm water d.m.v. Vaillant VHR CV ketel bouwjaar 2004
- Ruime inpandige berging met opstelplaats CV-combiketel en wasmachine aansluiting
- Gemetselde berging buiten voor fietsen en tuinspullen
- Actieve VvE, maandbijdrage EUR 210,- ; collectieve opstalverzekering en professioneel beheerder
- Zie de plattegronden voor de indeling en complete maatvoering.
- Niet zelfbewoningsclausule
- Oplevering: kan per direct

De opgegeven maatvoering is indicatief, voor de indeling en afmetingen verwijzen wij u naar de plattegrond.
Interesse in deze woning? U bent uiteraard meer dan welkom om deze sfeervolle woning te komen bezichtigen.
Schakel bij voorkeur uw eigen NVM-aankoopmakelaar in.
Uw NVM-aankoopmakelaar komt op voor uw belang en bespaart u tijd, geld en zorgen.
Deze informatie is door ons met de nodige zorgvuldigheid samengesteld.
Onzerzijds wordt echter geen enkele aansprakelijkheid aanvaard voor enige onvolledigheid, onjuistheid of anderszins, dan wel de gevolgen daarvan.

Locatie

[ { "address": "Verheullaan 2", "zipCode": "2661 SP", "city": "Bergschenhoek", "lat": 51.9947397, "lng": 4.5101762, "heading": 0, "pitch": 0 } ]

Kenmerken

Overdracht

Vraagprijs
€ 439.000 k.k.
Status
Beschikbaar
Oplevering
In overleg

Bouw

Soort appartement
Benedenwoning, Appartement
Woonlaag
1
Soort bouw
Bestaande bouw
Bouwjaar
1998
Onderhoud binnen
Goed
Onderhoud buiten
Goed
Bijzonderheden
Toegankelijk voor gehandicapten, Toegankelijk voor ouderen

Oppervlakten en inhoud

Woonoppervlakte
96m²
Inhoud
295m³

Indeling

Aantal kamers
3
Aantal slaapkamers
2
Aantal badkamers
1
Aantal verdiepingen
1
Voorzieningen
Mechanische ventilatie, TV-Kabel

Energie

Energielabel
A
Isolatie
Volledig geisoleerd
Warm water
C.V.-ketel
Verwarming
C.V.-ketel
Ketel
Vaillant (2005, Combi-ketel, Eigendom)

Buitenruimte

Ligging
Aan rustige weg, In woonwijk, Vrij uitzicht
Tuin
Achtertuin
Achtertuin
Noordwest, 56m², 450×1250cm
Schuur
Vrijstaand steen
Faciliteiten schuur
Voorzien van elektra

Garage

Plattegronden

Interesse in deze woning?

Bel of mail ons voor meer informatie of een afspraak.

Uw bericht is naar ons verzonden. Wij nemen zo snel mogelijk contact met u op.

Sorry, we kunnen helaas niet met zekerheid vaststellen of je een mens of een geautomatiseerde bot/spammer bent. Hierdoor kunnen we het formulier dat je hebt ingevuld niet verzenden. Probeer het opnieuw of neem direct contact op met de makelaar via e-mail.

Er is iets mis gegaan met het versturen van het formulier.
Controleer of u alle velden (goed) heeft ingevoerd en probeer het nog een keer.

recaptcha
reCAPTCHA
PrivacyTerms

phone

Liever telefonish contact?

Wij zijn bereikbaar op werkdagen tussen 09.00 en 17.30 op 070-350 31 71 of mail naar info@vaneijk.nl

×

Huis verkopen?

Weet waar u aan toe bent

Doe de verkooptest