Archimedesstraat 81
Duinoord, Den Haag

Omschrijving

Unieke dubbele benedenwoning in statig Duinoord – Ruim 138 m² woonplezier

In het geliefde en statige Duinoord, aan de fraaie Archimedesstraat, ligt deze bijzondere dubbele benedenwoning uit 1906. De woning beschikt over een royaal woonoppervlakte van 138 m² en ademt karakter dankzij de hoge ornamentenplafonds, glas-in-lood bovenramen en klassieke details. Met een 13 meter diepe woonkamer, een uitgebouwde woonkeuken met zicht op de achtertuin en drie ruime slaapkamers op de eerste verdieping is dit een heerlijk familiehuis op een toplocatie.

Ideale ligging
De woning ligt in een fantastische buurt: centraal tussen stad en strand, omringd door prachtige architectuur en een uitgebreid aanbod aan winkels, lunchrooms, scholen en sportvoorzieningen. Zowel de Reinkenstraat als de Frederik Hendriklaan zijn gemakkelijk lopend of per fiets bereikbaar. Ook het centrum van Den Haag, het strand, de haven en de duinen liggen op korte afstand.

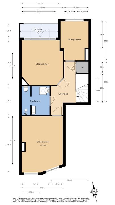
Indeling
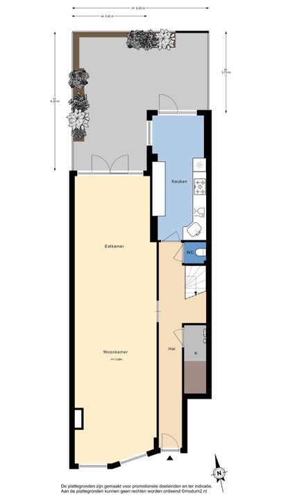
Begane grond
Entree met fraaie voordeur. Lange gang met vaste kast en trap naar de verdieping. Onder de trap is praktische ruimte voor een fiets of garderobe. Daarnaast bevindt zich hier een nette, eenvoudige toiletruimte.

De royale en opvallend lange woonkamer is aan de voorzijde voorzien van prachtige glas-in-loodramen en een fraaie visgraatparketvloer. Openslaande deuren aan de achterzijde geven toegang tot de L-vormige achtertuin, gelegen op het noorden/noordoosten. Dankzij deze ligging geniet je hier zowel in de ochtend als in de avond van de zon.

De uitgebouwde keuken biedt voldoende ruimte voor een ontbijttafel en is netjes en verzorgd uitgevoerd. De keuken is uitgerust met diverse inbouwapparatuur, waaronder een 90 cm breed Boretti gasfornuis met twee ovens.

Eerste verdieping
Trap naar de eerste verdieping met ruime overloop en vaste kast. Aan de voorzijde bevindt zich een prachtige slaapkamer met opnieuw de karakteristieke glas-in-loodramen en een vaste boekenkast over de volledige wand.

De centraal gelegen badkamer beschikt over een inloopdouche, wastafel en toilet. Hier bevinden zich tevens de aansluitingen voor de wasmachine en/of droger en de opstelplaats van de cv-ketel.

Aan de achterzijde ligt een zeer charmante tweede slaapkamer met openslaande deuren naar een diep en sfeervol balkon. Tot slot is er de derde slaapkamer, met een breedte van 2,17 meter uitstekend geschikt als kinder-, logeer- of werkkamer.

Goed om te weten:
Bouwjaar 1906.
Woonoppervlakte 138 m2.
Gelegen op eigen grond.
1/2de aandeel in de VvE (slechts 2 leden). Bijdrage € 116 per maand.
De Vve is actief en heeft een Ad Hoc beleid. Ze hebben een collectieve opstalverzekering en een kleine reserve.
Energielabel C.
Kozijnen begane grond en eerste verdieping voorzijde zijn voorzien van dubbel glas. .
Kozijnen eerste verdieping achter zijn voorzien van enkel glas.
Schilderwerk voorzijde in 2023 uitgevoerd
Schilderwerk achterzijde in 2024 uitgevoerd.
Remeha c.v.-ketel, bouwjaar 2024.
Gelegen in een Rijksbeschermd stadsgezicht.
Voor maten: zie plattegronden en meetstaat.
Oplevering in overleg.

Interesse in dit unieke appartement. Je bent uiteraard meer dan welkom om te komen bezichtigen. Schakel bij voorkeur een eigen NVM-aankoopmakelaar in. Een NVM-aankoopmakelaar komt op voor jouw belang en bespaart je tijd, geld en zorgen.

Vanwege de bouwperiode worden in de NVM-koopovereenkomst een “ouderdoms- en materialenclausule” opgenomen. Deze informatie is door ons met de nodige zorgvuldigheid samengesteld. Onzerzijds wordt echter geen enkele aansprakelijkheid aanvaard voor enige onvolledigheid, onjuistheid of anderszins, dan wel de gevolgen daarvan.

Locatie

[ { "address": "Archimedesstraat 81", "zipCode": "2517 RS", "city": "Den Haag", "lat": 52.0809502, "lng": 4.278767, "heading": 0, "pitch": 0 } ]

Kenmerken

Overdracht

Vraagprijs
€ 750.000 k.k.
Status
Beschikbaar
Oplevering
In overleg

Bouw

Soort appartement
Beneden + bovenwoning, Appartement
Woonlaag
Soort bouw
Bestaande bouw
Bouwjaar
1906
Onderhoud binnen
Goed
Onderhoud buiten
Goed
Bijzonderheden
Beschermd stads- of dorpgezicht

Oppervlakten en inhoud

Woonoppervlakte
138m²
Inhoud
523m³

Indeling

Aantal kamers
5
Aantal slaapkamers
3
Aantal badkamers
1
Aantal verdiepingen
2
Voorzieningen
TV-Kabel

Energie

Energielabel
C
Isolatie
Gedeeltelijk dubbel glas, Grotendeels dubbelglas, Voorzetramen
Warm water
C.V.-ketel
Verwarming
C.V.-ketel
Ketel
Remeha (2024, Combi-ketel, Eigendom)

Buitenruimte

Ligging
Aan rustige weg, In woonwijk
Balkon
Ja
Tuin
Achtertuin
Achtertuin
Noordoost, 31m², 620×500cm

Garage

Plattegronden

Interesse in deze woning?

Bel of mail ons voor meer informatie of een afspraak.

Uw bericht is naar ons verzonden. Wij nemen zo snel mogelijk contact met u op.

Sorry, we kunnen helaas niet met zekerheid vaststellen of je een mens of een geautomatiseerde bot/spammer bent. Hierdoor kunnen we het formulier dat je hebt ingevuld niet verzenden. Probeer het opnieuw of neem direct contact op met de makelaar via e-mail.

Er is iets mis gegaan met het versturen van het formulier.
Controleer of u alle velden (goed) heeft ingevoerd en probeer het nog een keer.

recaptcha
reCAPTCHA
PrivacyTerms

phone

Liever telefonish contact?

Wij zijn bereikbaar op werkdagen tussen 09.00 en 17.30 op 070-350 31 71 of mail naar info@vaneijk.nl

×

Huis verkopen?

Weet waar u aan toe bent

Doe de verkooptest