Hoornse Hop 7
Belgisch Park, Den Haag

Omschrijving

Een uniek object op een prachtige groene locatie in het duingebied van Meijendel en nabij de zee. Energielabel A+

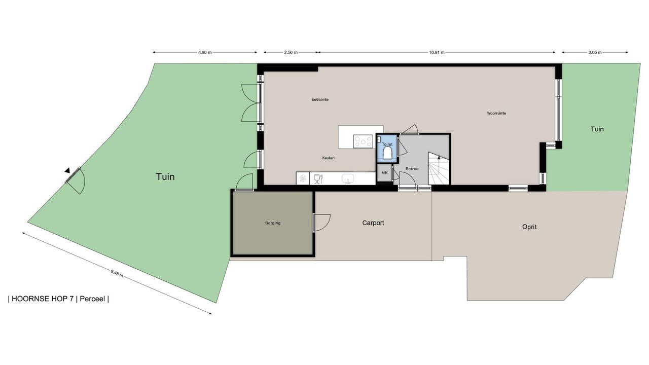
In 2006 is Villapark Oostduinen gerealiseerd. Een uniek project; dichtbij de drukte van de stad en Scheveningen, maar toch de rust en het groen van het duingebied. De straten zijn autoluw en mede daardoor ook zeer geschikt voor kinderen. Zo'n uniek object komt maar zelden voorbij. Erfpacht is eeuwigdurend AFGEKOCHT.

Deze zeer charmante half vrijstaande duinvilla (bouwjaar 2006) heeft een verlichte carport en ruime (fietsen)berging, is omringd met fraaie lokale duinbegroeiing, en heeft een riante zonnige achtertuin op het Zuidwesten met achterom. Geheel voorzien van isolatieglas HR++, 12 AEG zonnepanelen en daarmee energielabel A+. De villa heeft speelse doorkijkjes en raampartijen wat een enorm charmante lichtinval oplevert. 5 slaapkamers. Makkelijk een tweede badkamer te realiseren

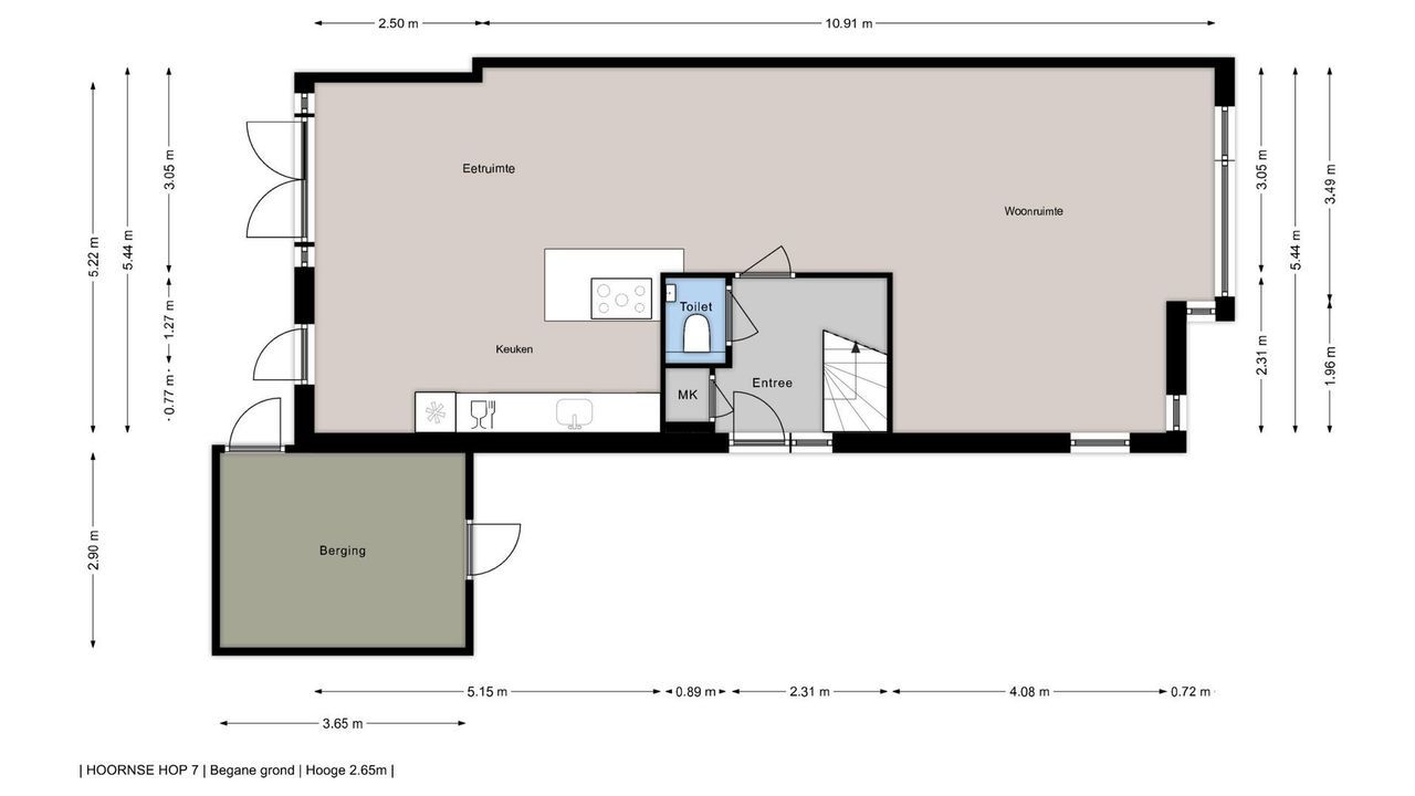
Voortuin, oprit, carport met ruimte voor meerdere auto's. Overdekte entree. Lichte ruime hal met diepe meterkast, garderobe, moderne w.c. met fontein en trap naar boven.
Ruime U-vormige woon-eetkamer met open keuken. De voorzijde is voorzien van mooie lichtinval door de fraaie raampartijen, met mooi uitzicht over de Hoornse Hop. Achterzijde is uitgebouwd en heeft openslaande deuren naar de vrij gelegen, ruime en zonnige achtertuin (ZW) met achterom en is aangelegd met wederom fraai lokaal duingroen met een mooie Moerbeiboom die in de zomer voor verkoeling zorgt. Ruime schuur/fietsenberging. Open luxe Siematic keuken (2006) met diverse inbouwapparatuur waaronder gaskookplaat met grill, brede afzuigkap, vaatwasser etc.
Gehele begane grond vloer is voorzien van keramische tegels met vloerverwarming.

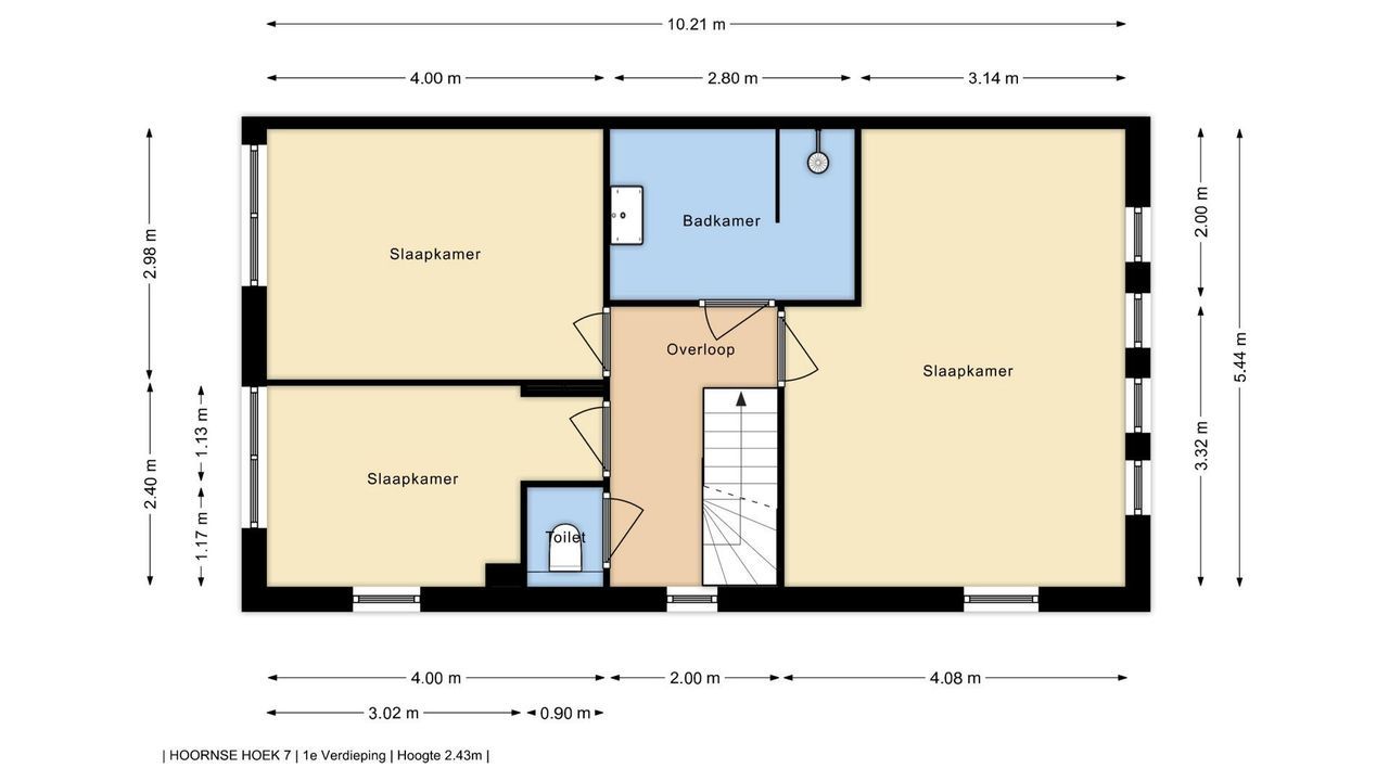
Trap naar de eerste verdieping, overloop, zeer ruime slaapkamer aan de voorzijde, 2 slaapkamers aan de achterzijde. Moderne badkamer met grote inloopdouche, modern wastafelmeubel en badkamerkast. Separate moderne w.c. met fontein.

Trap naar de tweede verdieping, overloop met dakkapel en opstelplaats c.v.-ketel (bouwjaar....), bergkamer met opstelplaats voor wasmachine en droger, deze ruimte kan makkelijk getransformeerd worden in een tweede badkamer omdat alle aansluitingen al aanwezig zijn. Grote slaapkamer en kleine slaapkamer.

Heerlijk wonen op een heerlijke plek midden in de natuur maar wel met de gemakken van de stad. Het huis verkeert in een zeer goede conditie. Fraaie tuin met lokale duinbeplanting, makkelijk in onderhoud.

Het weten waard:
- Energielabel A+;
- 12 AEG Zonnepanelen;
- Woonoppervlakte ca. 153 m2;
- 5 slaapkamers;
- 2 aparte toiletten;
- Voorbereidingen aanwezig voor tweede badkamer in zolderkamer;
- Gelegen op 250 m2 eeuwig durend afgekochte erfpachtgrond;
- Geïntegreerde uitbouw aan de achterzijde;
- Houten kozijnen met dubbele beglazing HR++;
- Mechanische ventilatie;
- Alarminstallatie;
- Ruime berging met plavuizen en elektriciteitsaansluitingen (o.a. voor elektrische apparatuur (zoals koel/vrieskast, magnetron e.d.), uitgebreid plankensysteem en voldoende ruimte voor fietsen, achterom;
- Centrale verwarming met warmwatervoorziening 2020;

Locatie

[ { "address": "Hoornse Hop 7", "zipCode": "2587 RV", "city": "Den Haag", "lat": 52.1149193, "lng": 4.289598, "heading": 0, "pitch": 0 } ]

Kenmerken

Overdracht

Vraagprijs
€ 1.147.500 k.k.
Status
Beschikbaar
Oplevering
In overleg

Bouw

Soort woonhuis
Eengezinswoning, Halfvrijstaande woning
Soort bouw
Bestaande bouw
Bouwjaar
2006
Onderhoud binnen
Goed
Onderhoud buiten
Goed

Oppervlakten en inhoud

Woonoppervlakte
153m²
Perceeloppervlakte
250m²
Overig oppervlakte
11m²
Inhoud
590m³

Indeling

Aantal kamers
7
Aantal slaapkamers
5
Aantal badkamers
1
Aantal verdiepingen
3
Voorzieningen
Alarminstallatie, Buitenzonwering, Glasvezel kabel, Mechanische ventilatie, Zonnepanelen

Energie

Energielabel
A+
Isolatie
Dakisolatie, Muurisolatie, Vloerisolatie
Warm water
C.V.-ketel
Verwarming
C.V.-ketel
Ketel
Remeha (2020, Combi-ketel, Eigendom)

Buitenruimte

Ligging
Aan rustige weg, Vrij uitzicht
Tuin
Achtertuin, Voortuin, Zijtuin
Achtertuin
Zuidwest, 99m², 900×1100cm
Schuur
Aangebouwd steen
Faciliteiten schuur
Voorzien van elektra, Voorzien van water

Garage

Soort garage
Carport

Interesse in deze woning?

Bel of mail ons voor meer informatie of een afspraak.

Uw bericht is naar ons verzonden. Wij nemen zo snel mogelijk contact met u op.

Sorry, we kunnen helaas niet met zekerheid vaststellen of je een mens of een geautomatiseerde bot/spammer bent. Hierdoor kunnen we het formulier dat je hebt ingevuld niet verzenden. Probeer het opnieuw of neem direct contact op met de makelaar via e-mail.

Er is iets mis gegaan met het versturen van het formulier.
Controleer of u alle velden (goed) heeft ingevoerd en probeer het nog een keer.

recaptcha
reCAPTCHA
PrivacyTerms

phone

Liever telefonish contact?

Wij zijn bereikbaar op werkdagen tussen 09.00 en 17.30 op 070-350 31 71 of mail naar info@vaneijk.nl

×

Huis verkopen?

Weet waar u aan toe bent

Doe de verkooptest