Ieplaan 66
Bomen- en Bloemenbuurt, Den Haag

Omschrijving

Zeer ruim, sfeervol en goed onderhouden herenhuis van ca. 228 m² voorzien van een indrukwekkende woon-/eetkamer met halfopen keuken, een zonnige achtertuin, zes slaapkamers, een studeerkamer, twee moderne badkamers en drie balkons. Dankzij goede isolatie van vloer en dak en grotendeels dubbel glas beschikt deze woning over energielabel C.

De ligging is bijzonder centraal, met de winkels van de Fahrenheitstraat om de hoek en de Frederik Hendriklaan op korte fietsafstand. Het strand, de havens en het centrum van Den Haag zijn goed bereikbaar. Parkeren is mogelijk in de straat en openbaar vervoer bevindt zich in de directe nabijheid.

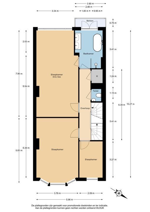
Indeling: entree met originele voordeur en fraaie glas-in-lood bovenramen. Ruime vestibule met meterkast. Gang met modern toilet en fonteintje. Toegang tot de kelder met opstelplaats voor de cv-ketel.

De woon-/eetkamer is royaal van opzet en voorzien van ornamentenplafonds, paneeldeuren en een visgraat parketvloer. Aan de voorzijde bevindt zich een erker met karakteristieke Jugendstil glas-in-loodramen; aan de achterzijde geven openslaande deuren toegang tot de op het zuidwesten gelegen tuin.

Vanuit de eetkamer is er een speelse open verbinding met de moderne keuken, voorzien van diverse inbouwapparatuur en een ruim werkblad.

Eerste verdieping: overloop met tweede toiletruimte en vaste kast. Zeer ruime achterslaapkamer met voldoende ruimte voor een kingsize bed, kastenwand en zithoek. Vanuit de slaapkamer én de gang toegang tot de aangrenzende badkamer. De badkamer is voorzien van een ligbad, inloopdouche, dubbel wastafelmeubel en handdoekenradiator en heeft openslaande deuren naar het balkon. Aan de voorzijde bevinden zich een tweede ruime slaapkamer met erker en glas-in-loodramen en een derde (zij)slaapkamer.

Tweede verdieping: overloop met derde toiletruimte. Ruime slaapkamer met openslaande deuren naar een terras over de volle breedte van de woning. Zijslaapkamer met eveneens dubbele deuren naar het balkon. Tussenkamer met dakraam, geschikt als werk-, logeer- of bergruimte. Aan de voorzijde nog een ruime slaapkamer met toegang tot het derde balkon. Tot slot de moderne tweede badkamer met douche en wastafel en aansluitingen voor wasmachine en droger.

De woning is de afgelopen jaren met veel zorg en aandacht bewoond door een groot gezin. Nu de kinderen bijna allemaal zijn uitgevlogen, zijn de eigenaren op zoek naar nieuwe bewoners die deze fijne woning met dezelfde zorg zullen voortzetten.

Het weten waard:
Gelegen op eigen grond.
Bouwjaar 1920.
Prachtige originele details uit de bouwperiode. De originele suiteseparatie is (in delen) nog aanwezig.
Woonoppervlakte 228 m2, kelder 13 m2 en 3 balkons
Achtertuin ca. 50 m2 op zuidwest.
Energielabel C.
Nagenoeg geheel voorzien van dubbel glas.
Vloerisolatie en dakisolatie.
Intergas HR ketel, bouwjaar 2017.
Elektra 18 groepen met ALS.
Schilderwerk voor- en achter uitgevoerd in 2023.
Bouwkundige rapport beschikbaar.
Oplevering in overleg.

Geïnteresseerd in geweldige herenhuis? Je bent van harte welkom om te komen kijken. We raden aan om je eigen NVM-aankoopmakelaar mee te nemen. Die behartigt jouw belangen en kan je helpen tijd, geld en zorgen te besparen.

Vanwege de bouwperiode worden in de NVM-koopovereenkomst een ouderdoms- en materialenclausule opgenomen.
Deze informatie is met zorg samengesteld; aan eventuele onjuistheden of onvolledigheden kunnen geen rechten worden ontleend.

Locatie

[ { "address": "Ieplaan 66", "zipCode": "2565 LN", "city": "Den Haag", "lat": 52.0807795, "lng": 4.2736948, "heading": 0, "pitch": 0 } ]

Kenmerken

Overdracht

Vraagprijs
€ 1.275.000 k.k.
Inrichting
Gestoffeerd
Status
Beschikbaar
Oplevering
In overleg

Bouw

Soort woonhuis
Herenhuis, Tussenwoning
Soort bouw
Bestaande bouw
Bouwjaar
1920
Onderhoud binnen
Uitstekend
Onderhoud buiten
Goed
Bijzonderheden
Beschermd stads- of dorpgezicht

Oppervlakten en inhoud

Woonoppervlakte
228m²
Perceeloppervlakte
141m²
Overig oppervlakte
13m²
Inhoud
909m³

Indeling

Aantal kamers
9
Aantal slaapkamers
7
Aantal badkamers
2
Aantal verdiepingen
4
Voorzieningen
Buitenzonwering, Dakraam, Mechanische ventilatie, Natuurlijke ventilatie, Rookkanaal, TV-Kabel

Energie

Energielabel
C
Isolatie
Dakisolatie, Grotendeels dubbelglas, Vloerisolatie
Warm water
C.V.-ketel
Verwarming
C.V.-ketel
Ketel
Interga Kombi Kompact HRE 36/30A (2017, Combi-ketel, Eigendom)

Buitenruimte

Ligging
Aan rustige weg, In woonwijk
Balkon
Ja
Tuin
Achtertuin
Achtertuin
Zuidwest, 50m², 620×800cm

Garage

Plattegronden

Interesse in deze woning?

Bel of mail ons voor meer informatie of een afspraak.

Uw bericht is naar ons verzonden. Wij nemen zo snel mogelijk contact met u op.

Sorry, we kunnen helaas niet met zekerheid vaststellen of je een mens of een geautomatiseerde bot/spammer bent. Hierdoor kunnen we het formulier dat je hebt ingevuld niet verzenden. Probeer het opnieuw of neem direct contact op met de makelaar via e-mail.

Er is iets mis gegaan met het versturen van het formulier.
Controleer of u alle velden (goed) heeft ingevoerd en probeer het nog een keer.

recaptcha
reCAPTCHA
PrivacyTerms

phone

Liever telefonish contact?

Wij zijn bereikbaar op werkdagen tussen 09.00 en 17.30 op 070-350 31 71 of mail naar info@vaneijk.nl

×

Huis verkopen?

Weet waar u aan toe bent

Doe de verkooptest