Nieuwe Parklaan 14
Westbroekpark en Duttendel, Den Haag

Omschrijving

Heerlijk super licht appartement (130 m2) met DRIE slaapkamers en TWEE badkamers in uitstekende staat gelegen op de 5e verdieping! Energielabel B. Inclusief eigen extra brede parkeerplaats en ruime (fietsen)berging. Door de riante raampartijen aan beide zijden van het appartement is er een prachtige lichtinval.

“Residence Witte Brug” is gebouwd in 1979 en heeft een prachtig weids uitzicht over het Westbroekpark, Madurodam en de skyline van Den Haag. Prettig gebouw op een goede locatie ten opzichte van de uitvalswegen (Hubertustunnel) met een actieve huismeester EN een verwarmd zwembad en sauna in de onderbouw. Eveneens een zeer actieve VVE.

Vanaf deze praktische en centraal gelegen locatie kunt u op de fiets of te voet naar Scheveningen, De Frederik Hendriklaan, de Bankastraat en het Centrum. Trams en bussen zijn eveneens op een steenworp afstand. De toerit naar de uitvalswegen is op enkele minuten afstand.

Voor het gebouw zijn 8 parkeerplaatsen gereserveerd voor gasten van bewoners.

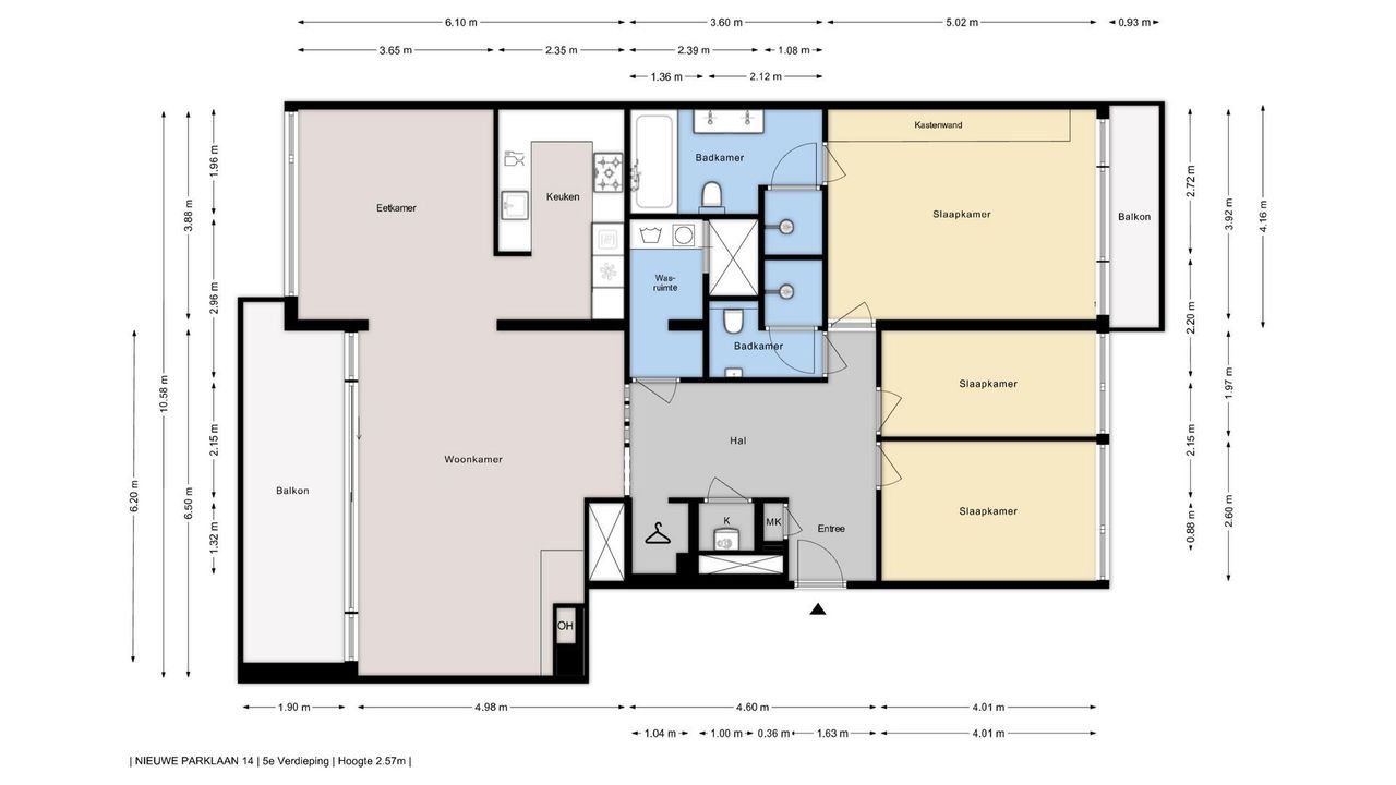
Indeling:
Afgesloten verzorgde entree met brievenbussen en videofooninstallatie. Lift naar de 5e verdieping. Ruime hal met toegang tot twee appartementen en de brandtrap.

Entree appartement. Voordeur met extra veiligheidssloten. Ruime centrale hal met meterkast en alarminstallatie. Garderoberuimte. Berging met opstelplaats combiketel (Intergas 2024). Ruime bijkeuken met veel bergruimte en wasmachine- en drogeraansluiting. Moderne gastenbadkamer met fontein, toilet en inloopdouche. Aan de voorzijde zijn drie ruime slaapkamers gesitueerd. Een van de slaapkamers kan worden gebruikt als 'panic room'. Dat betekent dat de deur verstevigd is en extra sloten heeft. De hoofd slaapkamer heeft een ruime kastenwand en een luxe moderne tweede badkamer (en suite) met inloopdouche, bad, luxe wastafelmeubel en toilet. Tevens is er een klein balkon.
Glazen semi-afscheiding naar de woon-eetkamer met open keuken. Heerlijke royale woonkamer met (niet gebruikte) gashaard en met schuifpui naar het zeer zonnige ruime balkon met volledige privacy. Fraaie eetkamer met moderne luxe open keuken met inbouwapparatuur (koelvriescombinatie, combimagnetron, oven, vaatwasser (2025), afzuigkap en gaskookplaat) en zwart natuurstenen aanrechtblad. Heerlijk zonnig vrij gelegen balkon (ZZW) van 12 m2 met zeer leuk dynamisch uitzicht over Madurodam.

Met de lift kunt u naar de onderbouw alwaar een heerlijk verwarmd zwembad en sauna op u wacht. Er is een huismeester in het complex.
Op de tweede onderlaag bevindt zich de ruime droge berging en in het parkeergedeelte is de extra brede parkeerplaats (6 x 3.25).

Zeer actieve VVE met een professionele bestuurder. Een maandelijkse bijdrage van 512 euro voor het beheer, onderhoud en schoonmaak van de gemeenschappelijke delen van het appartementencomplex, opstalverzekering en het reserveren voor groot onderhoud; Er is een meerjarenonderhoudsplan (MJOP). Momenteel wordt het vervangen van de kozijnen en de ramen onderzocht. Huismeester tijdens werkdagen.

Kortom: Een prachtig ruim en zeer licht appartement met adembenemend uitzicht en veel privacy, gelegen op een fantastische centrale locatie, met parkeerplaats en berging. Zwembad en sauna t.b.v. de bewoners in de onderbouw.

Bijzonderheden:
Bouwjaar 1979;
Woonoppervlakte 130 m2;
Gelegen op eigen grond;
Goed functionerende Vereniging van Eigenaren met een maandelijkse bijdrage van 512 euro;
Meerjarenonderhoudsplan (MJOP) is aanwezig;
Rijksbeschermd stadsgezicht Westbroekpark en Belgisch Park;
Ruime berging in de onderbouw;
Extra brede eigen parkeerplaats in de garage;
Bewoners kunnen gebruik maken van het zwembad en de sauna;
Huismeester;
Energielabel B;
Volledig voorzien van dubbelglas;
Combiketel Intergas uit 2024 met nieuw rookgaskanaal;
Zonneschermen uit 2022;

In de te sluiten koopakte zullen gezien het bouwjaar (1979) de ouderdomsclausule en materialenclausule worden opgenomen. De notariskeuze is aan de kopende partij. Heeft u interesse in dit prachtige appartement, dan maken wij graag een afspraak voor een bezichtiging met u. Uiteraard kunt u ook uw eigen aankoopmakelaar inschakelen die opkomt voor uw belangen. Kijkt u op Funda.nl, voor de contactgegevens van onze aankoop collega makelaars.

*****************************


A wonderfully bright apartment (130 m²) with THREE bedrooms and TWO bathrooms in excellent condition, located on the 5th floor! Energy efficiency rating: B. Includes a private extra-wide parking space and a spacious storage room (for bicycles). The large windows on both sides of the apartment allow for beautiful natural light.

“Residence Witte Brug” was built in 1979 and offers a stunning panoramic view of Westbroekpark, Madurodam, and The Hague’s skyline. A pleasant building in a convenient location near major thoroughfares (Hubertustunnel), featuring an active building manager AND a heated pool and sauna in the basement. It also has a very active homeowners’ association.

From this practical and centrally located spot, you can cycle or walk to Scheveningen, Frederik Hendriklaan, Bankastraat, and the city center. Trams and buses are also just a stone’s throw away. The entrance to the major roads is only a few minutes away.

In front of the building, 8 parking spaces are reserved for residents’ guests.

Layout:
Secure, well-maintained entrance with mailboxes and videophone system. Elevator to the 5th floor. Spacious hallway with access to two apartments and the fire escape.

Apartment entrance. Front door with additional security locks. Spacious central hallway with utility closet and alarm system. Coat closet. Storage room with space for a combi boiler (Intergas 2024). Spacious utility room with ample storage space and connections for a washer and dryer. Modern guest bathroom with sink, toilet, and walk-in shower. Three spacious bedrooms are located at the front of the home. One of the bedrooms can be used as a “panic room.” This means the door is reinforced and has additional locks. The master bedroom features a spacious built-in closet and a luxurious, modern second bathroom (en suite) with a walk-in shower, bathtub, luxurious vanity, and toilet. There is also a small balcony.
A glass partition separates the living-dining room from the open kitchen. A lovely, spacious living room with a (unused) gas fireplace and sliding doors leading to the very sunny, spacious balcony with complete privacy. Beautiful dining room with a modern, luxurious open kitchen featuring built-in appliances (fridge-freezer, combination microwave, oven, dishwasher (2025), range hood, and gas cooktop) and a black natural stone countertop. Lovely, sunny, unobstructed balcony (SWW) of 12 m² with a very nice, dynamic view of Madurodam.

Take the elevator down to the lower level, where a lovely heated pool and sauna await you. There is a building manager on site.
On the second lower level, you’ll find a spacious, dry storage room, and the parking area features an extra-wide parking space (6 x 3.25).

Very active homeowners’ association with a professional manager. A monthly fee of 512 euros covers the management, maintenance, and cleaning of the common areas of the apartment complex, building insurance, and a reserve fund for major repairs; there is a long-term maintenance plan (MJOP). The replacement of the window frames and windows is currently being evaluated. Caretaker on weekdays.

In short: A beautiful, spacious, and very bright apartment with breathtaking views and plenty of privacy, situated in a fantastic central location, with a parking space and storage room. Swimming pool and sauna for residents in the basement.

Details:
Built in 1979;
Living area 130 m²;
Located on freehold land;
Well-run Homeowners’ Association with a monthly fee of 512 euros;
Long-term maintenance plan (MJOP) is available;
Nationally protected cityscape of Westbroekpark and Belgisch Park;
Spacious storage room in the basement;
Extra-wide private parking space in the garage;
Residents have access to the swimming pool and sauna;
Caretaker;
Energy efficiency rating B;
Fully equipped with double-glazed windows;
Intergas combi boiler from 2024 with new flue;
Awnings from 2022;

Given the year of construction (1979), the deed of sale to be executed will include an age clause and a materials clause. The choice of notary is up to the buyer. If you are interested in this beautiful apartment, we would be happy to schedule a viewing with you. Of course, you may also engage your own buyer’s agent to represent your interests. Please visit Funda.nl for the contact information of our fellow buyer’s agents.

Locatie

[ { "address": "Nieuwe Parklaan 14", "zipCode": "2597 LD", "city": "Den Haag", "lat": 52.100386, "lng": 4.2982034, "heading": 0, "pitch": 0 } ]

Kenmerken

Overdracht

Vraagprijs
€ 775.000 k.k.
Inrichting
Gestoffeerd
Status
Beschikbaar
Oplevering
In overleg

Bouw

Soort appartement
Bovenwoning, Appartement
Woonlaag
5
Soort bouw
Bestaande bouw
Bouwjaar
1979
Onderhoud binnen
Uitstekend
Onderhoud buiten
Goed
Bijzonderheden
Beschermd stads- of dorpgezicht, Toegankelijk voor gehandicapten, Toegankelijk voor ouderen

Oppervlakten en inhoud

Woonoppervlakte
130m²
Inhoud
410m³

Indeling

Aantal kamers
5
Aantal slaapkamers
3
Aantal badkamers
2
Aantal verdiepingen
1
Voorzieningen
Alarminstallatie, Buitenzonwering, Glasvezel kabel, Lift, Mechanische ventilatie, Sauna, Schuifpui, Zwembad

Energie

Energielabel
B
Isolatie
Dubbel glas
Warm water
C.V.-ketel
Verwarming
C.V.-ketel
Ketel
Intergas (2024, Combi-ketel, Eigendom)

Buitenruimte

Ligging
Aan park, Aan het water, Vrij uitzicht
Balkon
Ja
Schuur
Inpandig
Faciliteiten schuur
Voorzien van elektra

Garage

Soort garage
Parkeerkelder
Afmetingen
20m², 325×600

Interesse in deze woning?

Bel of mail ons voor meer informatie of een afspraak.

Uw bericht is naar ons verzonden. Wij nemen zo snel mogelijk contact met u op.

Sorry, we kunnen helaas niet met zekerheid vaststellen of je een mens of een geautomatiseerde bot/spammer bent. Hierdoor kunnen we het formulier dat je hebt ingevuld niet verzenden. Probeer het opnieuw of neem direct contact op met de makelaar via e-mail.

Er is iets mis gegaan met het versturen van het formulier.
Controleer of u alle velden (goed) heeft ingevoerd en probeer het nog een keer.

recaptcha
reCAPTCHA
PrivacyTerms

phone

Liever telefonish contact?

Wij zijn bereikbaar op werkdagen tussen 09.00 en 17.30 op 070-350 31 71 of mail naar info@vaneijk.nl

×

Huis verkopen?

Weet waar u aan toe bent

Doe de verkooptest