Obrechtstraat 240
Duinoord, Den Haag

Omschrijving

ENGLISH TEXT BELOW



Een object dat zo uniek is, komt maar zelden te koop.
Deze prachtige, unieke en out-of-the-box parterre, en eerste verdieping (ca. 239m2) uit 1900 met zeer hoge plafonds is een echte bijoux, met prachtige lichtinval door de overvloed aan raampartijen. Ooit een grote werkplaats en een apart bovenhuis, nu een 'one of a kind' appartement in uitstekende staat, volledig onder architectuur gerenoveerd.

Een perfecte samensmelting van residentieel en industrieel. Vooral het open karakter van het appartement spreekt tot de verbeelding.

In 2012 zijn deze twee verdiepingen geheel gerenoveerd, waarbij alle installaties zijn vernieuwd, vloeren, diverse kozijnen en vloerverwarming. In 2020 en 2022 zijn verdere renovaties uitgevoerd, waaronder een nieuwe keuken, een nieuwe familie badkamer, bijkeuken en buitenwerk. Heerlijke locatie om de hoek van de gezellige Reinkenstraat!

Indeling:
Via de originele grote garagedeuren komt u in een door stalen kozijnen omgeven hal, ideaal als garderobe en opbergruimte voor (bak)fietsen.

De woon-/eetruimte met vloerverwarming heeft in het midden een grote open keuken voorzien van diverse inbouwapparatuur (koelkast, vriezer, 6-pits gasfornuis met grote oven, vaatwasser, afzuigkap, wijnkoelkast). Het werkeiland van de keuken is voorzien van een geïntegreerd barelement waardoor je heerlijk kunt borrelen en eten in de keuken. Mooie openslaande deuren naar de gezellige, zeer zonnige stadstuin (ZZW). Het achtergedeelte (uitbouw) is op diverse manieren te gebruiken. Nu is er een familiekamer, een doorgang naar een logeer-/studeerkamer met annex moderne badkamer voorzien van douche, wastafel en toilet. Hier bevindt zich ook de kast voor de wasmachine/droger en de CV-installatie (2022).
Vanuit de keuken is er een gang met de originele marmeren tegels, modern toilet, gangkast, kelder.

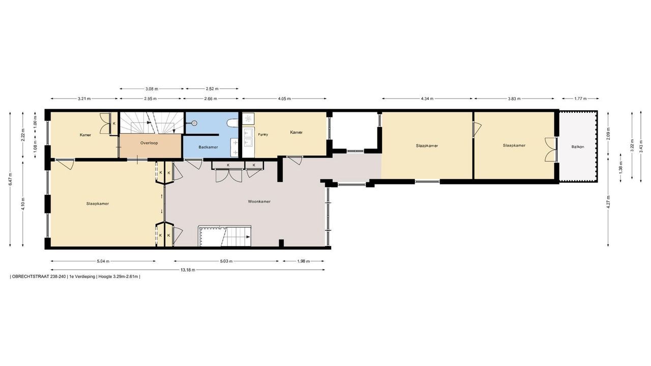
Met open design trap naar de eerste verdieping, fraaie visgraat parketvloer. Schuifdeuren naar grote voorkamer met annex zijkamer. Nieuwe moderne badkamer met douche, toilet en wastafelmeubel. Kamer momenteel in gebruik als studeerkamer met een pantry, deze kamer kan ook als slaapkamer dienen. Serre met prachtige raampartijen. 2 achter elkaar gelegen kamers op de 1e verdieping van de uitbouw met een heerlijk zonnig achterbalkon met fantastisch uitzicht over de Conrad- en Suezkade.

De VVE is gevestigd met hierboven appartementsnummer 238a. Omdat beide appartementen van dezelfde eigenaar zijn, wordt nu weer geactiveerd.
Er is een MJOP en gezamenlijke opstalverzekering, bankrekening en notulen zullen worden verstrekt.

Kortom een spectaculair object dat met grote zorg is gemaakt en bewoond en dat tot ieders verbeelding zal spreken.

Bijzonderheden:
- 5 slaapkamers
- 2 badkamers
- 3 toiletten
- Energielabel C
- Eigen grond
- Woonoppervlakte ca. 239m2
- Ouderdoms- en materialenclausule van toepassing.
- Vanaf 2012 is het object in 3 grote fases gerenoveerd, namelijk in 2012, 2020 en 2022.

Voor de indeling en afmetingen verwijzen wij u naar de plattegronden.

Interesse in deze woning? Schakel direct uw eigen NVM-aankoopmakelaar in.
Uw NVM-aankoopmakelaar komt op voor uw belang en bespaart u tijd, geld en zorgen.
Gegevens van collega NVM-aankoopmakelaars in Haaglanden vindt u op www.funda.nl.


********************************
ENGLISH


A property this unique rarely comes up for sale.

This beautiful, unique and out-of-the-box parterre, and first floor (ca. 239m2) from 1900 with very high ceilings is a real bijoux, with wonderful light through the abundance of windows. Once a large workshop and separate upper house, now a 'one of a kind' flat in excellent condition, completely renovated under architecture.

A perfect fusion of residential and industrial. The open character of the apartment in particular appeals to the imagination.

In 2012, these two floors were completely renovated, with all installations renewed, floors, various window frames and underfloor heating. Further renovations were carried out in 2020 and 2022, including a new kitchen, new family bathroom, utility room and exterior work. Lovely location around the corner from the cosy Reinkenstraat!

Layout:
Through the original large garage doors, you enter a hallway surrounded by steel frames, ideal as a cloakroom and storage space for (cargo) bikes.

The living/dining area with underfloor heating has a large open kitchen in the middle with various built-in appliances (fridge, freezer, 6-burner gas cooker with large oven, dishwasher, extractor hood, wine fridge). The kitchen's work island has an integrated bar element, allowing you to enjoy drinks and meals in the kitchen. Beautiful French doors open onto the cosy, very sunny city garden (SW). The rear area (extension) can be used in various ways. Now there is a family room, a passage to a guest/study room with annex modern bathroom equipped with shower, sink and toilet. Here is also the closet for the washer/dryer and the central heating system (2022).
From the kitchen there is a hallway with the original marble tiles, modern toilet, hallway cupboard, cellar.

With open design staircase to first floor, beautiful herringbone parquet floor. Sliding doors to large front room with annex side room. New modern bathroom with shower, toilet and washbasin. Room currently used as a study with a pantry, this room can also serve as a bedroom. Conservatory with beautiful windows. 2 back-to-back rooms on the 1st floor of the extension with a lovely sunny rear balcony with fantastic views over the Conrad and Suezkade.

The VVE is established with flat number 238a above. Since both apartments are from the same owner the VVE is now being reactivated.
There is a MJOP and joint building insurance, bank account and minutes will be provided.

In short, a spectacular property made and lived in with great care that will capture everyone's imagination.

Details:
- 5 bedrooms
- 2 bathrooms
- 3 toilets
- Energy label C
- Own land
- Living area approx. 239m2
- Age and materials clause applicable.
- From 2012, the property has been renovated in 3 major phases, namely in 2012, 2020 and 2022.

**************

Please refer to the floor plans for layout and dimensions.

Interested in this property? Immediately engage your own NVM purchase broker.
Your NVM purchase broker will look after your interests and save you time, money and worries.
Details of fellow NVM purchase brokers in Haaglanden can be found at www.funda.nl.

Locatie

[ { "address": "Obrechtstraat 240", "zipCode": "2517 VD", "city": "Den Haag", "lat": 52.0818753, "lng": 4.2818927, "heading": 0, "pitch": 0 } ]

Kenmerken

Overdracht

Vraagprijs
€ 1.000.000 k.k.
Status
Verkocht
Oplevering
In overleg

Bouw

Soort appartement
Beneden + bovenwoning, Appartement
Woonlaag
1
Soort bouw
Bestaande bouw
Bouwjaar
1896
Onderhoud binnen
Uitstekend
Onderhoud buiten
Uitstekend
Bijzonderheden
Beschermd stads- of dorpgezicht

Oppervlakten en inhoud

Woonoppervlakte
239m²
Overig oppervlakte
12m²
Inhoud
945m³

Indeling

Aantal kamers
8
Aantal slaapkamers
5
Aantal badkamers
2
Aantal verdiepingen
3

Energie

Energielabel
C
Isolatie
Dubbel glas, Grotendeels dubbelglas
Warm water
C.V.-ketel
Verwarming
C.V.-ketel
Ketel
Remeha (2022, Combi-ketel)

Buitenruimte

Ligging
In woonwijk
Balkon
Ja
Tuin
Achtertuin
Achtertuin
Zuidwest, 42m², 320×1315cm

Garage

Plattegronden

Deze woning is niet meer beschikbaar.

Heeft u ook interesse in onze verkoop- en verhuurbegeleiding? Bel of mail ons voor meer informatie of een afspraak.

Uw bericht is naar ons verzonden. Wij nemen zo snel mogelijk contact met u op.

Sorry, we kunnen helaas niet met zekerheid vaststellen of je een mens of een geautomatiseerde bot/spammer bent. Hierdoor kunnen we het formulier dat je hebt ingevuld niet verzenden. Probeer het opnieuw of neem direct contact op met de makelaar via e-mail.

Er is iets mis gegaan met het versturen van het formulier.
Controleer of u alle velden (goed) heeft ingevoerd en probeer het nog een keer.

recaptcha
reCAPTCHA
PrivacyTerms

phone

Liever telefonish contact?

Wij zijn bereikbaar op werkdagen tussen 09.00 en 17.30 op 070-350 31 71 of mail naar info@vaneijk.nl

×

Huis verkopen?

Weet waar u aan toe bent

Doe de verkooptest