Sumatrastraat 330
Archipelbuurt, Den Haag

Omschrijving

Archipel – Sumatrastraat 330 (English text below)

IN EEN RUSTIGE STRAAT IN DE INDISCHE BUURT GELEGEN TE MODERNISEREN RUIM 5 KAMER DUBBEL BOVENAPPARTEMENT MET TERRAS EN KAPVERDIEPING!
Achter een zeer fraaie en recent onderhouden voorgevel bevindt zich dit royale appartement met 3 woonlagen.
Het biedt een verscheidenheid aan mogelijkheden voor de handige koper.
Gelegen in een gewilde buurt op een centrale locatie op 10 minuten fietsen van het strand en 10 minuten van het centrum.

Ligging:
De woning ligt in een rustige brede straat.
Speciaalzaken en supermarkten voor dagelijkse boodschappen in de Bankastraat om de hoek, gezellige horeca en winkels in de Frederikstraat en op de Denneweg.
Dichtbij het groen van de Scheveningse bosjes, Park Sorghvliet en het Westbroekpark. Sportgelegenheden op korte afstand en het centrum van Den Haag op 5 minuten fietsafstand.
Duin, zee, strand op max 15 minuten fietsen. Openbaar vervoer op loopafstand, tram 1 en 9, Den Haag Centraal Station nabij.
Parkeren kan voor de deur met een bewonersvergunning(€97,- p/j)

Indeling:
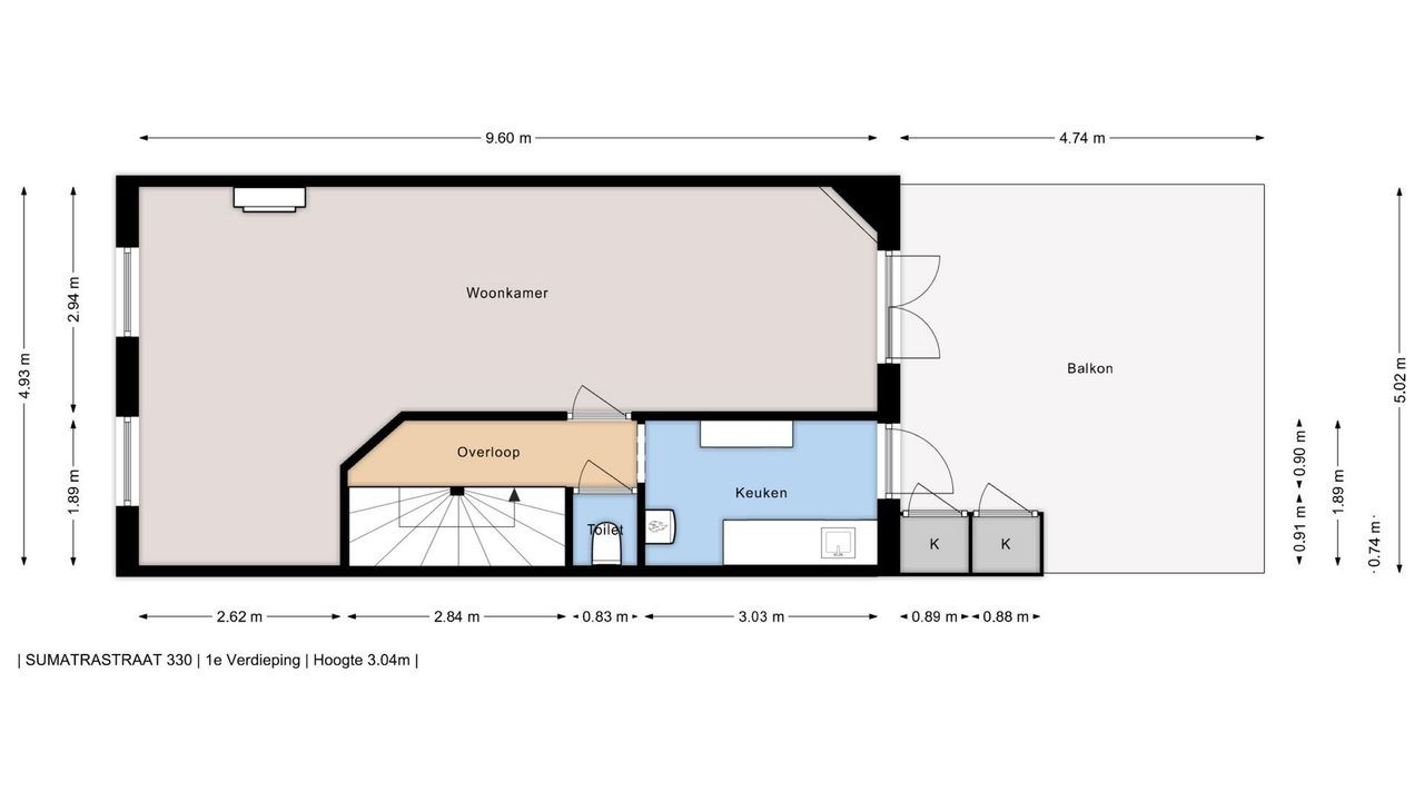
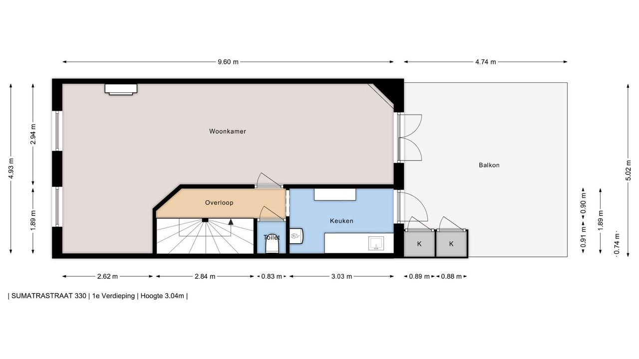
Entree op de BG met halletje en de trap naar de 1e verdieping, overloop met WC ruimte, toegang tot de royale L-vormige woonkamer.
Deze voormalige en-suite is bijeen getrokken waardoor er een lichte ruimte is ontstaan. De oude originele schouwen, de paneeldeuren en het glas in lood in de voorgevel geven delen van de oude glorie van het pand weer.
Aan de achterzijde openslaande deuren naar het diepe terras over de volle breedte op de middag en avondzon.
De gedateerde keuken met deur naar het terras bevindt zich aan de achterzijde, het is voor een koper te overwegen deze ruimte bij de woonkamer te trekken.

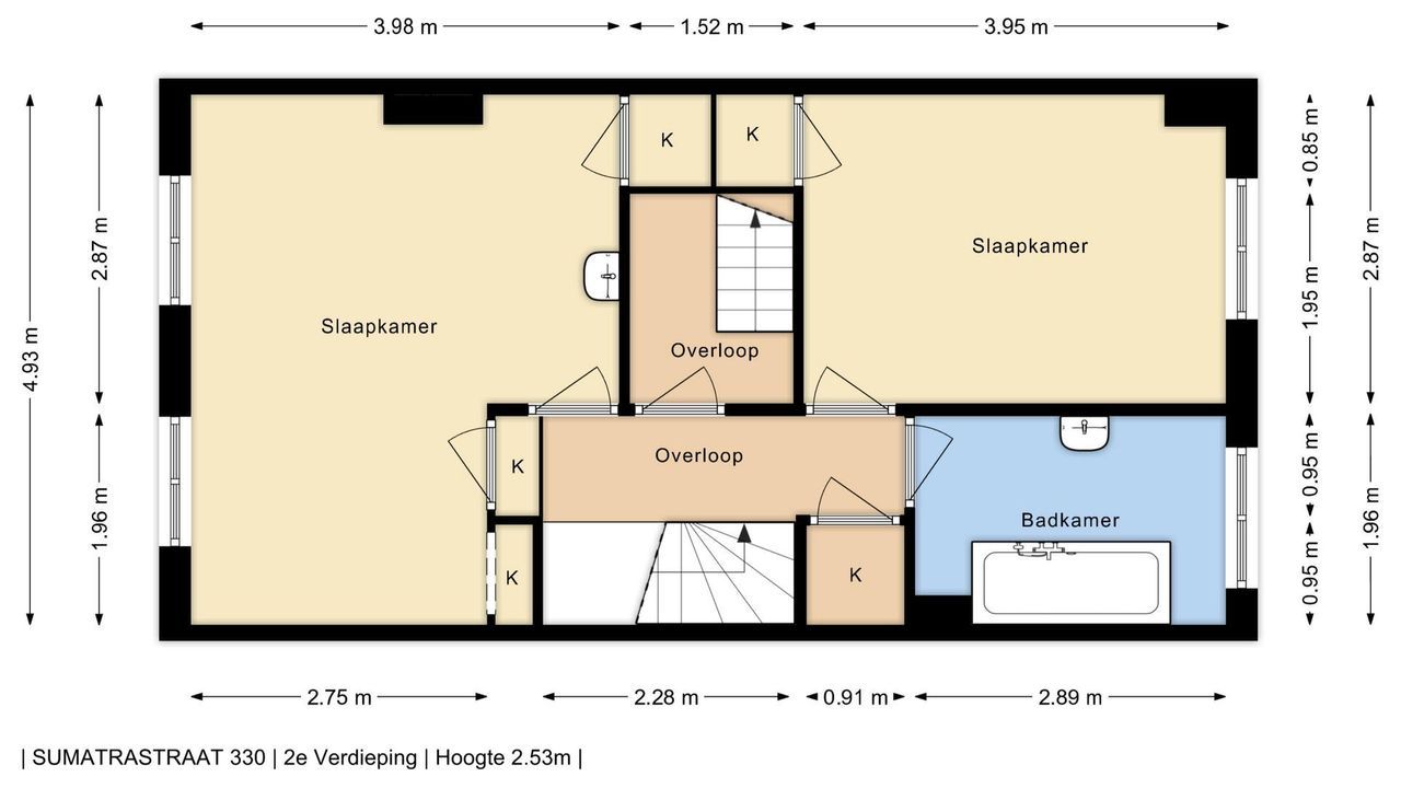
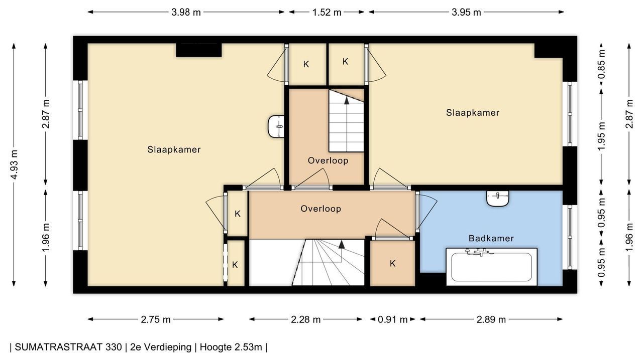
Originele houten trap naar de 2e verdieping met WC ruimte een badkamer van ca 2 x 3m in 70’s stijl en 2 ruime slaapkamers met openslaande ramen en vaste kasten.
Slaapkamer 1: aan de voorzijde over de volle breedte met 2 sets openslaande ramen met uitzicht door de straat
Slaapkamer 2: aan de achterzijde, met openslaande ramen en zicht op terras
Overloop met trap naar de kapverdieping.
Deze zolderkap met dakramen is nu in 2 compartimenten verdeeld.
Dit zou met liefde en aandacht een prachtige ruimte kunnen worden, zeker als er een dakkapel aan de achterkant zou worden geplaatst voegt dit licht en meters toe.
Voor de liefhebbers die dit prachtige pand in ere willen en kunnen herstellen is dit appartement absoluut een bezichtiging waard

Aanvullende informatie:
- Bouwjaar 1905
- Woonoppervlakte ca. 110m2 gemeten volgens de BBMI (Branche Brede Meet Instructies)
- Appartement is gelegen op eigen grond
- Gelegen binnen in een gebied dat is aangewezen als Rijks Beschermd Stadsgezicht
- Verwarming en warm water door professioneel onderhouden CV HR-combiketel Intergas (bj 2023)
- 5/8 e aandeel in de VvE die vers wordt opgericht door een professionele beheerder, collectieve opstalverzekering, MJOP en vergaderingen. Maandelijkse bijdrage van ca € 275,-
- Energielabel C
- Rondom houten kozijnen met bijna overal dubbel glas
- Veel originele details zoals paneeldeuren, schouwen en glas in lood zijn nog aanwezig
- Oplevering kan per direct
- De woning dient gemoderniseerd te worden
- Niet zelfbewoningsclausule, woning is langdurig aan dezelfde persoon verhuurd geweest
- Vanwege het bouwjaar worden de ouderdoms- en materialenclausule in de koopovereenkomst opgenomen
- Woning wordt geleverd “ as is, where is “

De opgegeven maatvoering is indicatief, voor de indeling en afmetingen verwijzen wij u naar de plattegrond.
Interesse in deze woning? U bent uiteraard meer dan welkom om deze sfeervolle woning te komen bezichtigen.
Schakel bij voorkeur uw eigen NVM-aankoopmakelaar in. Uw NVM-aankoopmakelaar komt op voor uw belang en bespaart u tijd, geld en zorgen.
Deze informatie is door ons met de nodige zorgvuldigheid samengesteld.
Onzerzijds wordt echter geen enkele aansprakelijkheid aanvaard voor enige onvolledigheid, onjuistheid of anderszins, dan wel de gevolgen daarvan.

Archipel – Sumatrastraat 330

LOCATED IN A QUIET STREET IN THE ARCHIPEL NEIGHBOURHOOD, THIS SPACIOUS 5-ROOM DOUBLE TOP-FLOOR APARTMENT WITH TERRACE AND ATTIC NEEDS MODERNISING!
Behind a beautiful and recently maintained façade lies this spacious 3-storey apartment.
It offers a variety of possibilities for the handy buyer.
Located in a sought-after neighbourhood in a central location, 10 minutes by bike from the beach and 10 minutes from the city centre.

Location:
The property is located in a quiet, wide street.
Specialty shops and supermarkets for daily shopping are located on Bankastraat around the corner, and there are cosy restaurants and shops on Frederikstraat and Denneweg.
Close to the greenery of the Scheveningen woods, Park Sorghvliet and Westbroekpark.
Sports facilities are a short distance away, and the centre of The Hague is a 5-minute bike ride away.
Dunes, sea and beach are a maximum of 15 minutes away by bike.
Public transport is within walking distance, tram 1 and 9, The Hague Central Station is nearby.
Parking is available in front of the door with a resident's permit (€97 per year).

Layout:
Entrance on the ground floor with small hall and stairs to the first floor, landing with toilet, access to the spacious L-shaped living room.
This former en-suite has been combined to create a light space. The old original fireplaces, panel doors and stained glass in the front façade reflect some of the building's former glory.
At the rear, French doors open onto the deep terrace across the full width, which enjoys afternoon and evening sun.
The dated kitchen with door to the terrace is located at the rear; a buyer may consider incorporating this space into the living room.

Original wooden staircase to the second floor with a toilet, a 70s-style bathroom measuring approximately 2 x 3 metres and two spacious bedrooms with French windows and built-in wardrobes.
Bedroom 1: at the front, spanning the full width of the house, with two sets of French windows overlooking the street.
Bedroom 2: at the rear, with French windows and a view of the terrace.
Landing with stairs to the attic.
This attic with skylights is now divided into two compartments.
With some love and attention, this could become a beautiful space, especially if a dormer window were to be installed at the rear, adding light and extra space.
For enthusiasts who want to and are able to restore this beautiful property to its former glory, this apartment is definitely worth a visit.

Additional information:
- Built in 1905
- Living area approx. 110 m2 measured according to the BBMI (Branche Brede Meet Instructies)
- Apartment is located on private land
- Located within an area designated as a nationally protected cityscape
- Heating and hot water provided by a professionally maintained Intergas HR combi boiler (built in 2023)
- 5/8 share in the owners' association, which is being set up by a professional manager, collective building insurance, MJOP and meetings. Monthly contribution of approximately € 275
- Energy label C
- Wooden window frames with double glazing almost everywhere
- Many original details such as panel doors, fireplaces and stained glass are still present
- Delivery can be immediate
- The property needs to be modernised
- Non-owner-occupancy clause, property has been rented to the same person for a long time
- Due to the year of construction, the age and materials clauses will be included in the purchase agreement
- Property will be delivered “as is, where is”

The dimensions given are indicative; for the layout and dimensions, please refer to the floor plan.
Interested in this property? You are more than welcome to come and view this charming property.
We recommend that you engage your own NVM purchase agent.
Your NVM purchase agent will represent your interests and save you time, money and worry.
This information has been compiled by us with the necessary care.
However, we accept no liability for any incompleteness, inaccuracy or otherwise, or the consequences thereof.

Locatie

[ { "address": "Sumatrastraat 330", "zipCode": "2585 CZ", "city": "Den Haag", "lat": 52.0931429, "lng": 4.3080249, "heading": 0, "pitch": 0 } ]

Kenmerken

Overdracht

Vraagprijs
€ 495.000 k.k.
Status
Verkocht
Oplevering
In overleg

Bouw

Soort appartement
Bovenwoning, Dubbel bovenhuis
Woonlaag
2
Soort bouw
Bestaande bouw
Bouwjaar
1905
Onderhoud binnen
Redelijk
Onderhoud buiten
Goed
Bijzonderheden
Beschermd stads- of dorpgezicht, Kluswoning

Oppervlakten en inhoud

Woonoppervlakte
110m²
Overig oppervlakte
1m²
Inhoud
390m³

Indeling

Aantal kamers
5
Aantal slaapkamers
3
Aantal badkamers
1
Aantal verdiepingen
3
Voorzieningen
Dakraam, Rookkanaal

Energie

Energielabel
C
Isolatie
Gedeeltelijk dubbel glas
Warm water
C.V.-ketel
Verwarming
C.V.-ketel
Ketel
Intergas Combi (2023, Combi-ketel, Eigendom)

Buitenruimte

Ligging
Aan rustige weg, In woonwijk

Garage

Plattegronden

Deze woning is niet meer beschikbaar.

Heeft u ook interesse in onze verkoop- en verhuurbegeleiding? Bel of mail ons voor meer informatie of een afspraak.

Uw bericht is naar ons verzonden. Wij nemen zo snel mogelijk contact met u op.

Sorry, we kunnen helaas niet met zekerheid vaststellen of je een mens of een geautomatiseerde bot/spammer bent. Hierdoor kunnen we het formulier dat je hebt ingevuld niet verzenden. Probeer het opnieuw of neem direct contact op met de makelaar via e-mail.

Er is iets mis gegaan met het versturen van het formulier.
Controleer of u alle velden (goed) heeft ingevoerd en probeer het nog een keer.

recaptcha
reCAPTCHA
PrivacyTerms

phone

Liever telefonish contact?

Wij zijn bereikbaar op werkdagen tussen 09.00 en 17.30 op 070-350 31 71 of mail naar info@vaneijk.nl

×

Huis verkopen?

Weet waar u aan toe bent

Doe de verkooptest