Ten Hovestraat 15
Geuzen- en Statenkwartier, Den Haag

Omschrijving

IN EEN VAN DE MOOISTE STRATEN VAN HET POPULAIRE STATENKWARTIER GELEGEN, UITERMATE SFEERVOL 3-LAAGS FAMILILEHUIS MET RIANTE MAATVOERING (CA. 198 M² WOONOPPERVLAK!) EN ZONNIGE VOOR- EN ACHTERTUIN! VEEL FRAAIE ORIGINELE DETAILS ZIJN BEWAARD GEBLEVEN.

Welkom in dit echte familiehuis. Het huis is de afgelopen bijna 50 jaren door dezelfde familie met veel plezier en zorg bewoond. Er zijn ontzettend veel mooie oriniginele stijldetails bewaard gebleven; originele schuifseparatie(s) met mooi glas, mooie glas-in-lood ramen, paneeldeuren met geslepen glas, schoorsteenmantels, mooi houtwerk, granitovloeren, lambriseringen etc. De sfeer en dynamiek van 1915 zijn duidelijk nog aanwezig in dit fijne huis met fraaie woon/-eetkamer ensuite, 6 slaapkamers, 2 badkamers, 3 w.c.'s, kelder, fietsenberging, voor- en achtertuin. Energielabel D. Dubbel glas. Het huis verdiend een grondige renovatie om zich zo weer aan te passen aan een nieuwe familie.

Fantastisch gelegen in het Statenkwartier om de hoek van de razend populaire Frederik Hendriklaan. Het strand, openbaar vervoer, het Centrum, internationale organisaties zijn allemaal op loopafstand. Ook zijn diverse scholen in de directe omgeving te vinden waaronder twee basisscholen, de Franse alsmede de Duitse school. Kortom: een ideale woonlocatie!!

Indeling
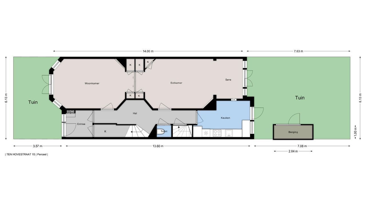
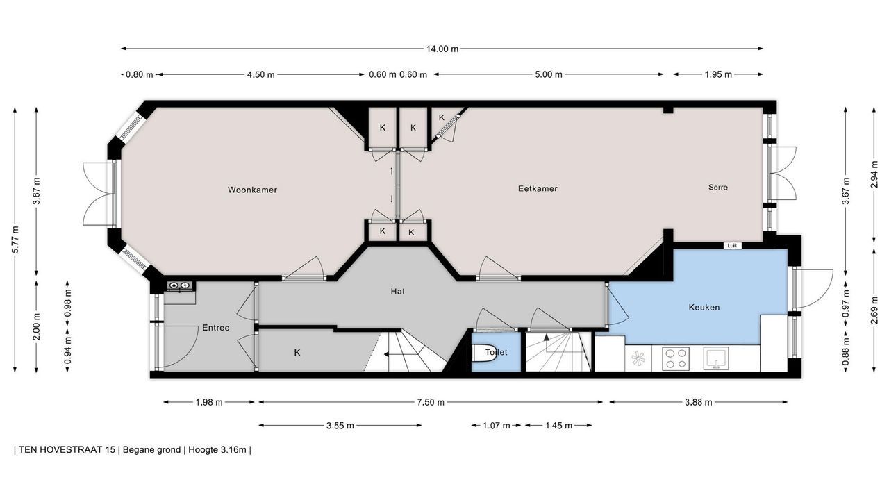
Dit karakteristieke herenhuis is gebouwd omstreeks 1914 en heeft zowel een voor- als een achtertuin met een stenen schuur.

Entree, ruime hal met mooie originele lambrisering, fietsenberging, centrale hal met garderobe mogelijkheid. Moderne w.c. met fontein, toegang tot ruime kelder. Ruime nette dichte keuken met opening naar de eetkamer aan de andere zijde en met diverse inbouwapparatuur. Toegang naar de tuin. Woon-/eetkamer met schuifseparatie. De voorkamer heeft openslaande deuren naar de voortuin, een marmeren schoorsteenmantel en glas-in-lood ramen. De achterkamer heeft 3 vaste kasten, plafondlijsten, paneeldeuren met geslepen glas, openslaande deuren naar de achtertuin. Fijne mooi aangelegde tuin met fruitbomen en een stenen schuur.

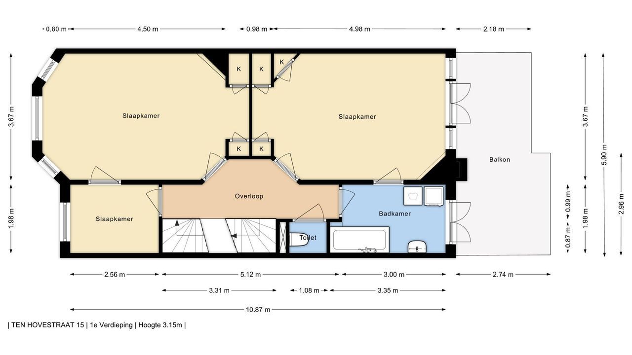
Trap naar eerste verdieping:
Overloop, voorzijkamer, zeer ruime voorkamer met vaste kasten, schoorsteenmantel, schuifseparatie (nu dicht gemaakt) naar achterkamer met eveneens vaste kasten en schoorsteenmantel en openslaande deuren naar een heel ruim terras. Verouderde badkamer met ligbad, vaste wastafel, wasmachine en droger opstelling. Separate eenvoudige w.c.

Trap naar tweede verdieping:
Overloop, voorzijkamer met zeer charmante raampartij, voorkamer met vaste kasten en toegang tot klein voorbalkon. Achterkamer met vaste kasten en openslaande deuren naar achterbalkon. Verouderde badkamer met douche en vaste wastafel, separate verouderde toilet. Opstelplaats c.v.-ketel. Daklicht.

Bijzonderheden:
- Aanvaarding in overleg, kan snel
- Eigen grond.
- Geheel dubbel beglaasd
- Energielabel D
- Bouwkundige keuring aanwezig.
- Gelegen op een uitstekende locatie in het Statenkwartier
- Levering betreft een boedel, overdracht bij voorkeur bij notaris Grijmans Dierckxens
- Ouderdoms- en materialenclausule zullen in de NVM koopovereenkomst worden opgenomen.

DIT AANTREKKELIJKE FAMILIEHUIS IS ZONDER MEER UW BEZICHTIGING WAARD!

De gegeven informatie is met zorgvuldigheid opgesteld, aan de juistheid kunnen echter geen rechten worden ontleend. Alle verstrekte informatie moet beschouwd worden als een uitnodiging tot het doen van een aanbod of om in onderhandeling te treden.

Interesse in dit huis? Bel ons voor het maken van een afspraak of schakel direct uw eigen aankoopmakelaar in. Uw aankoopmakelaar komt op voor uw belang en bespaart u veel tijd, geld en zorgen.

Locatie

[ { "address": "Ten Hovestraat 15", "zipCode": "2582 RH", "city": "Den Haag", "lat": 52.0963511, "lng": 4.2816412, "heading": 0, "pitch": 0 } ]

Kenmerken

Overdracht

Vraagprijs
€ 1.085.000 k.k.
Status
Beschikbaar
Oplevering
In overleg

Bouw

Soort woonhuis
Herenhuis, Tussenwoning
Soort bouw
Bestaande bouw
Bouwjaar
1914
Onderhoud binnen
Redelijk
Onderhoud buiten
Redelijk
Bijzonderheden
Beschermd stads- of dorpgezicht

Oppervlakten en inhoud

Woonoppervlakte
198m²
Perceeloppervlakte
150m²
Overig oppervlakte
12m²
Inhoud
768m³

Indeling

Aantal kamers
8
Aantal slaapkamers
6
Aantal badkamers
2
Aantal verdiepingen
4
Voorzieningen
TV-Kabel

Energie

Energielabel
D
Isolatie
Gedeeltelijk dubbel glas
Warm water
C.V.-ketel
Verwarming
C.V.-ketel
Ketel
Bosch (2010, Combi-ketel, Eigendom)

Buitenruimte

Ligging
Aan rustige weg, In woonwijk
Balkon
Ja
Tuin
Achtertuin, Voortuin
Achtertuin
Noordwest, 43m², 613×708cm
Schuur
Vrijstaand steen
Faciliteiten schuur
Voorzien van elektra

Garage

Plattegronden

Interesse in deze woning?

Bel of mail ons voor meer informatie of een afspraak.

Uw bericht is naar ons verzonden. Wij nemen zo snel mogelijk contact met u op.

Sorry, we kunnen helaas niet met zekerheid vaststellen of je een mens of een geautomatiseerde bot/spammer bent. Hierdoor kunnen we het formulier dat je hebt ingevuld niet verzenden. Probeer het opnieuw of neem direct contact op met de makelaar via e-mail.

Er is iets mis gegaan met het versturen van het formulier.
Controleer of u alle velden (goed) heeft ingevoerd en probeer het nog een keer.

recaptcha
reCAPTCHA
PrivacyTerms

phone

Liever telefonish contact?

Wij zijn bereikbaar op werkdagen tussen 09.00 en 17.30 op 070-350 31 71 of mail naar info@vaneijk.nl

×

Huis verkopen?

Weet waar u aan toe bent

Doe de verkooptest